CREATING A BASE MAP

The existing details on your site


Every landscape design begins with a base map; a to-scale drawing that captures the essential details of your site. This map documents existing features such as property lines, structures, vegetation, and natural elements. Before jumping into the creative side of design, it’s crucial to gather and organize this site information. A well-made base map becomes the foundation for all design decisions, helping you visualize spatial relationships, plan functional layouts, and anticipate potential challenges. While the process of measuring and documenting can be time-consuming, working from an accurate base map makes the entire design process more efficient.

This month we'll focus on the five key steps when CREATING A BASE MAP: Gathering Information, Measuring the Site, Drawing the Base Map and finally Making Copies so we can start designing! Let's do this!

 GOODNESS FOR YOU THIS MONTH 

Below you will find several items to help you learn more about CREATING A BASE MAP. From written words to video to applied activities to our Design + Template Libraries to group discussions. Explore our topic from different angles and gain a new perspective. Click on the images below to download a PDF of your Garden Design Guide and view a landing page that further describes our Activities. Further down you will find a video and links to our community, one bonus live session, plus a live Monthly Meetup too!

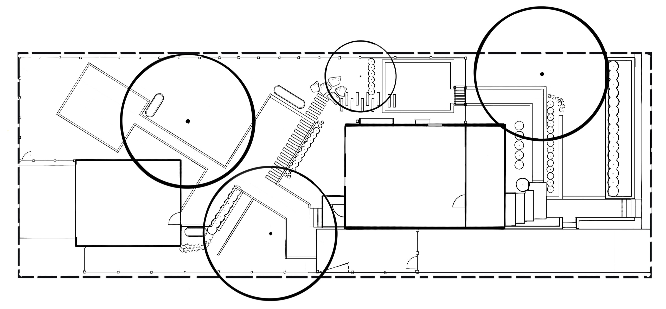
VIDEO: Determining Your Paper Size

This video shows how the scale you choose impacts the size of your final paper.

RESOURCES in our DESIGN LIBRARY 

 The resources below are a wonderful way to help expand your skills in CREATING A BASE MAP.

PRESENTATION GRAPHICS

This was a bonus presentation where we discussed: title blocks, scales, lettering, paper, plant schedules and more.


PRESENTATION GRAPHICS

TEMPLATE:

Doors + Windows

Use this to draw doors and windows on buildings in plan view. This template is included in our TEMPLATE LIBRARY too.


DOORS + WINDOWS 

TEMPLATE:

Graphic Scales

Use this to draw graphic scales on your base map. This template is included in our TEMPLATE LIBRARY too.


GRAPHIC SCALES

 USING A SCALE CHEAT SHEET

This cheat sheet is also located on the main page of our membership site. Use it to start learning about scale.


SCALE CHEAT SHEET

 ONE DESIGNER'S  STEP-BY-STEP PROCESS IN CREATING A BASE MAP

To prepare for this month's topic I asked one of my former Iowa State students, Jordyn LaFollette, to create a base map of my property. She not only made a beautiful plan, but I also asked her to write down the steps she took to create it. Click below to read about her process. 


JORDYN'S BASE MAP PROCESS

OUR COMMUNITY 

Don't forget to hang out with us this month.

Check in to share your activity. Try it yourself and/or learn from the submissions of your peers. No need to stress. Just enjoy!

CREATING A BASE MAP ACTIVITIES


We have two activities this month. Choose one, both or simply learn from your peer submissions.

.....

ACTIVITY ONE: Share a tool or tip for creating base maps

.....

ACTIVITY TWO: Create Your Base Map

Do you have a question?


Do you have a question on this month's topic or another design question?  Let's all learn together! 

.....

Click below to add it to our community.

Yes! I have a question!

Share a win!


What have you accomplished in the last month that makes you super happy? Let us celebrate with you!

.....

Click below to add it to our community.

I have something cool to share!

LIVE SESSIONS

We have two this month: our normal Q+A, plus the second discussion of our book club. These will be recorded in case you can't make it (then posted right back here). Check out all UPCOMING MEETUPS here. I can't wait to see you!

Favorite Tips for Thorough + Accurate Base Maps


Kryssie Maybay, PLA

Owner of Kismet Design, LLC, Lake Stevens, WA

.....

Thursday, April 17

9 AM PDT | 10 AM MDT | 11 AM CDT | Noon EDT

London: 5 PM BST

Sydney: April 18 at 2 AM AEST


CHAT NOTES

RECORDING

Monthly MeetUp

Let's catch up on this month's topic, plus share our activities. I can't wait to see you!


Tuesday, April 22

8 AM PDT | 9 AM MDT | 10 AM CDT | 11 AM DT

London: 4 PM BST

Sydney: April 24 at 1 AM AEST


 CHAT NOTES

RECORDING

I'd love your feedback once you've devoured all this goodness. 

Drop me a note at the email below and let me know what you loved and what could be improved. Thank you!


Please contact me at [email protected]

Return to the  Garden Design Collective headquarters

HEAD BACK HERE